最新資訊
contact us
聯系我們
產品名稱: 負壓氣力輸送
產品類型: 負壓氣力輸送系統
產品型號: 連續式、亦可間斷,管道內無積存
發布時間: 2018-02-03
- 產品描述
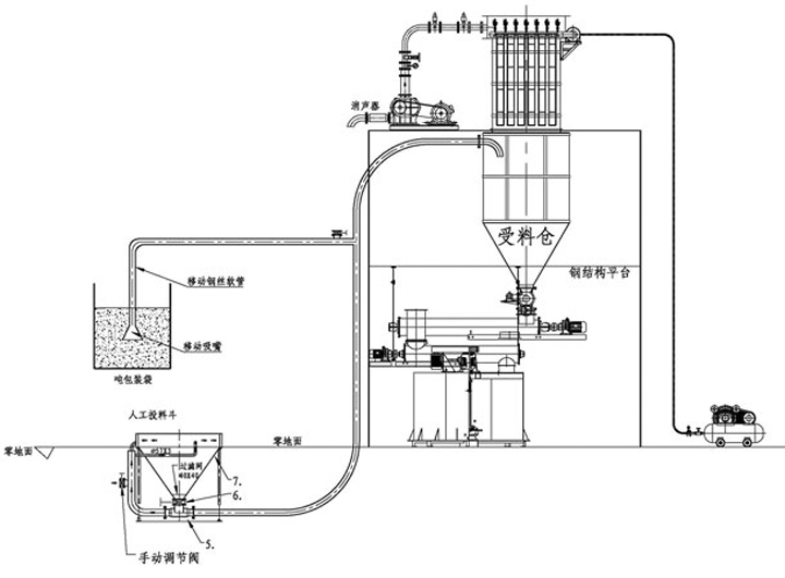
負壓氣力輸送就是其輸送的時整個管道壓力低于當地氣壓的輸送系統,壓吸送式氣流輸送是整個氣流輸送最早實際運用、可靠、成熟的輸送方式。根據工作壓強不同可以分為低真空(真空度小于1000mm水柱)和高真空(真空度大于1000mm水柱)兩種形式。

基本原理:
負壓氣力輸送一般用羅茨真空泵作動力源,將管路及罐式倉抽成一定的真空狀態,促成進風口在大氣壓的作用下形成物料粉粒料與氣體的兩相流,經輸送管道輸入旋風分離器。兩相流在旋風分離器內由于離心力及重力作用下,使大部分物料與氣體分離。少量的物料與氣體進入除塵器,通過濾袋作用使粉料與氣體分離,氣體排入大氣。

- 其他產品
未能查詢到您想要的產品
